SITUERING
Personal training centrum met onderverhuur, reeds 13 jaar een gevestigde waarde in het Gentse. De vennootschap bezit een instapklaar en polyvalent bedrijfsgebouw van ca. 245 m², strategisch gelegen in deelgemeente van Gent, met vlotte verbinding naar R4, E40 en E17.
Het pand wordt momenteel uitgebaat als personal training studio met bijkomende onderverhuur van ruimte(s). De koper kan de bestaande activiteit verderzetten, uitbreiden of het gebouw volledig herbestemmen volgens eigen noden. Dankzij de open structuur is opsplitsing in meerdere afzonderlijke units (tot ca. 8–9 ruimtes) perfect mogelijk.
HUIDIGE WERKING
• Actieve personal training werking : 4 trainers op zelfstandige basis, (onderverhuur en commissie) alsook onderverhuur aan podoloog.
• Recurrente inkomsten
• Instapklaar en onmiddellijk operationeel
Deze combinatie van eigen exploitatie en onderverhuur zorgt voor een stabiele basisstructuur.
VASTGOEDGEGEVENS
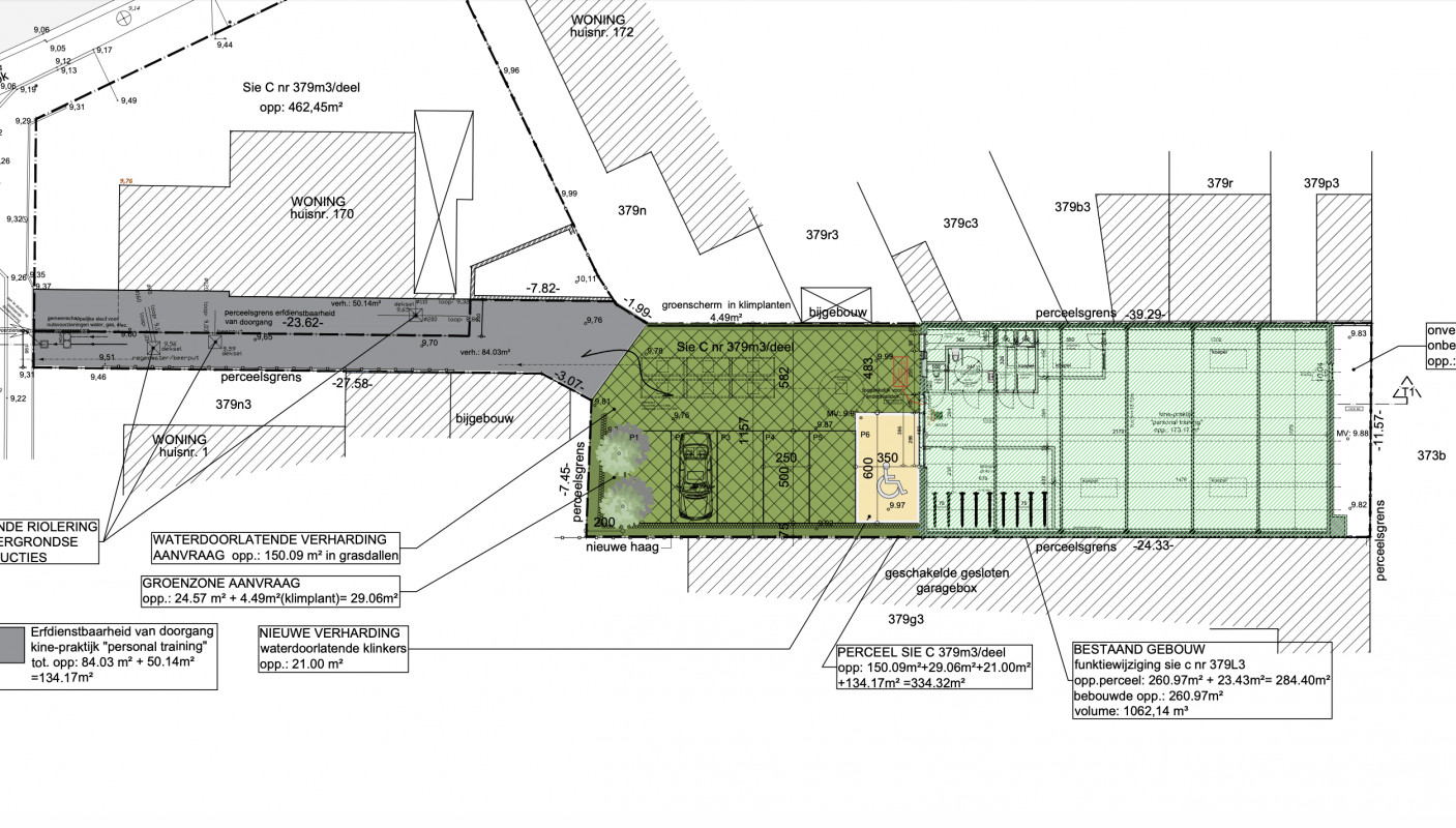
• Ca. 245 m² bruikbare oppervlakte , totale oppervlakte ca. 1130m2
• Grote open trainings-/werkruimte
• Aparte lokalen mogelijk. Momenteel 1 behandelingsruimte
• Sanitair, douches en uitgeruste keuken
• 6 privatieve parkeerplaatsen
• Flexibel herindeelbaar zonder structurele ingrepen
ENERGIE & TECHNISCHE UITRUSTING
• 19 zonnepanelen
• Dakisolatie (12cm), voor- achter gevel (10cm)
• Vloerverwarming op gas
• Energiezuinige installatie (EGW op maandbasis +-145 euro)
• Ventilatie D systeem
• Goed onderhouden technieken
Het gebouw is technisch in orde en onmiddellijk inzetbaar zonder grote investeringen.
FINANCIEEL
Overname via aandelen van de vennootschap.
• Richtprijs aandelen: €390.000
• Resterende bankschuld (maart 2026): ± €240.000
ING-leningen:
1. Vastgoedlening: vaste rente 1,15% tot 15/07/2040
2. Lening zonnepanelen & isolatie: rente 3,71%, resterende looptijd ± 5 jaar
• Boekhoudkundig eigen vermogen: ± €178.000 (tussentijdse cijfers 30/09/2025)
• Eigen vermogen te verhogen met gerealiseerde winst sinds deze datum. Boekhouding 2025 wordt op 1/6/2026 afgesloten.
De combinatie van lage vaste rente, beperkte schuldgraad en bestaand eigen vermogen maakt dit een financieel gezonde structuur.
PROFIEL KOPER
Ideaal voor:
• Personal trainer of fitnessondernemer die onmiddellijk wil starten
• Kinesitherapeut, osteopaat, chiropractor of andere zorgprofessional
• Groepspraktijk (medisch/paramedisch)
• Ondernemer die combinatie van eigen activiteit en onderverhuur wenst
• Zelfstandige of KMO die polyvalente bedrijfsruimte zoekt
Daarnaast perfect geschikt voor atelier, opslag, kantoren, showroom of andere professionele invullingen.
REDEN VERKOOP
Nieuwe uitdaging vennoten. Eerder gesloten akkoord werd niet nagekomen (juridisch dossier lopende). De vennootschap wordt opnieuw aangeboden in volledige discretie.
Meer informatie beschikbaar op aanvraag.